Projet
Oiseaux des Îles
Année
Livré 2014
Maîtrise d’ouvrage
Nantes Habitat
Maîtrise d’oeuvre
Antonini architecte & associés
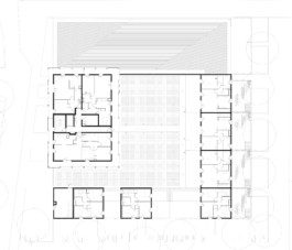
Programme neuf
30 logements collectifs et intermédiaires + commerces
Surface
3 150 m² SHON
Coût
5,3 M € HT

À l’instar de l’aménagement général de l’île de Nantes, notre architecture exploite subtilement les particularités de son environnement et puise son esthétisme dans la réinterprétation de ces données. Idéalement situé, le bâtiment joue le rôle de balise marquant un point de rassemblement. La grande force du programme et de son articulation réside dans la dualité qui existe entre le socle tellurique, monolithe à l’échelle du piéton dédié aux commerces et aux logements intermédiaires, et le volume de logements collectifs presque aérien émergeant de ce bloc. Ce dernier se déforme et ondule pour différencier les fonctions du programme et permettre leur identification.
Résolument terrien, lié au sol, confondu au terroir, il est le lien entre les logements, la ville et leurs usagers. Volume élancé vers le ciel par une pointe affirmée telle une proue, le bâtiment de logements collectifs se revendique simple et fort. Reprenant la trame urbaine, la façade reçoit un système de peau, sorte de moucharabieh vivant, alternant les pleins, les vides et les mouvements des volets au gré des habitants









Photos Alexandre Wasilewski

Projet
Oiseaux des Îles
Année
Livré 2014
Maîtrise d’ouvrage
Nantes Habitat
Maîtrise d’oeuvre
Antonini architecte & associés
Programme neuf
30 logements collectifs et intermédiaires + commerces
Surface
3 150 m² SHON
Coût
5,3 M € HT

À l’instar de l’aménagement général de l’île de Nantes, notre architecture exploite subtilement les particularités de son environnement et puise son esthétisme dans la réinterprétation de ces données. Idéalement situé, le bâtiment joue le rôle de balise marquant un point de rassemblement. La grande force du programme et de son articulation réside dans la dualité qui existe entre le socle tellurique, monolithe à l’échelle du piéton dédié aux commerces et aux logements intermédiaires, et le volume de logements collectifs presque aérien émergeant de ce bloc. Ce dernier se déforme et ondule pour différencier les fonctions du programme et permettre leur identification.
Résolument terrien, lié au sol, confondu au terroir, il est le lien entre les logements, la ville et leurs usagers. Volume élancé vers le ciel par une pointe affirmée telle une proue, le bâtiment de logements collectifs se revendique simple et fort. Reprenant la trame urbaine, la façade reçoit un système de peau, sorte de moucharabieh vivant, alternant les pleins, les vides et les mouvements des volets au gré des habitants








Photos Alexandre Wasilewski
Antonini architecte & associés
36 rue de Lancry, 75010 Paris
+ 33 (0)1.82.28.04.70
agence@antonini.archi
Instagram
Linkedin
2019 © Antonini Archi