Projet
Elements
Année
Livré 2017
Maîtrise d’ouvrage
Vinci Immobilier
Maîtrise d’oeuvre
Antonini architecte & associés
Mission
Complète
Programme neuf
Bureaux, commerces et RIE
Surface
17 742 m² SHON
Coût
34,25 M € HT

Situé à l’entrée de l’avenue Pierre Mendès France, axe fort de la ZAC Masséna, le secteur Austerlitz sud est un site emblématique des mutations du quartier qui transforment petit à petit cet espace ferroviaire délaissé en un espace urbain jouant pleinement son rôle dans la ville. En continuité spatiale du front bâti, la façade urbaine sur l’avenue Pierre Mendès France se compose de ruptures la séquençant. Les différentes ruptures, qu’elles soient taillées fortement dans la masse ou sobrement dans le revêtement animent la façade et génère des effets de surprises, des respirations qui appellent à regarder par-delà le bâtiment et à deviner son intériorité.



Transparente et fine, une première peau brillante enveloppe les bureaux. Composée uniformément, elle homogénéise les volumes disloqués. Plus arachnéenne, une maille ajourée recouvre la peau pour former un écran protecteur qui s’adapte aux besoins environnementaux et au confort intérieur des bureaux. Sa trame irrégulière affine le corps massif, tandis que son épaisseur préserve des regards et fait office de brise-soleil. Simple et élaborée, la maille est travaillée en corrélation avec le séquençage des volumes. Jouant sur les proportions et les perceptions, elle revêt deux aspects différents. Minérale, blanche, linéaire et large d’un côté, elle contraste avec la finesse de la «maille en bois » dont les variations d’orientations des ailettes offre un effet cinétique enrichissant la mise en scène urbaine. Minérales et végétales, les façades lient le projet à son contexte à la fois urbain et paysager. Sobre et élégant, le bâtiment se nuance et intègre les différentes contraintes du macro au micro en s’ajustant à chaque échelle de son environnement.




Espaces extérieurs paysagers uniques


Intégration forte du paysage et mise en oeuvre d’un biotope favorisant la biodiversité

• Réglementations ERP, code du travail
• Rigueur des plans : forte mutabilité
• Rez-de-chaussée et circulation principale : programmes actifs du bâtiment
• Paysage et espaces extérieurs omniprésents : jardins, roof-top,nombreuses terrasses et balcons
• Porosité et générosité des communs pour favoriser échanges et rencontres
• Escalier d’honneur central : lumière et ouverture

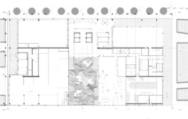
Plan rez-de-chaussée

Plan courant

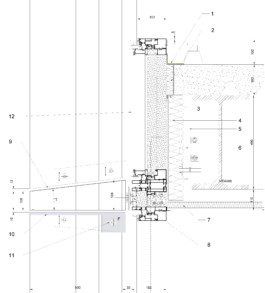
Détail nez de plancher avec modénature bois
1. Tôle acier 20/10ème + viscoélastique 2.5 mm à 5 kg/m3
2. Laine de roche 50 kgm3
3. Tôle acier 0.75 mm calfeutrement nez de plancher fixation tous les 500 mm maxi + joint mousse ou pompe
4. Laine minérale collée à la façade à 50 kg/m3 minimum
5. Gousset métallique tous les 1350 mm
6. Complexe d’accroche des façades par éléments réglables par le dessous 3 dimensions
7. Bande BA13 + Isolant 30 mm
8. Reprise de charge pour consoles modénatures + interposition résiliant thermique
9. Espacement 13 mm permettant l’absorption de la dilatation et de la flèche 10 mm
10. Protection inox en tête de modénatures verticales
11. Axe d’accroche des modénatures verticales (rotule)
12. Shadowbox

Photos Pierre L'Excellent, Laurent Desmoulins

Projet
Elements
Année
Livré 2017
Maîtrise d’ouvrage
Vinci Immobilier
Maîtrise d’oeuvre
Antonini architecte & associés
Mission
Complète
Programme neuf
Bureaux, commerces et RIE
Surface
17 742 m² SHON
Coût
34,25 M € HT
Situé à l’entrée de l’avenue Pierre Mendès France, axe fort de la ZAC Masséna, le secteur Austerlitz sud est un site emblématique des mutations du quartier qui transforment petit à petit cet espace ferroviaire délaissé en un espace urbain jouant pleinement son rôle dans la ville. En continuité spatiale du front bâti, la façade urbaine sur l’avenue Pierre Mendès France se compose de ruptures la séquençant. Les différentes ruptures, qu’elles soient taillées fortement dans la masse ou sobrement dans le revêtement animent la façade et génère des effets de surprises, des respirations qui appellent à regarder par-delà le bâtiment et à deviner son intériorité.



Transparente et fine, une première peau brillante enveloppe les bureaux. Composée uniformément, elle homogénéise les volumes disloqués. Plus arachnéenne, une maille ajourée recouvre la peau pour former un écran protecteur qui s’adapte aux besoins environnementaux et au confort intérieur des bureaux. Sa trame irrégulière affine le corps massif, tandis que son épaisseur préserve des regards et fait office de brise-soleil. Simple et élaborée, la maille est travaillée en corrélation avec le séquençage des volumes. Jouant sur les proportions et les perceptions, elle revêt deux aspects différents. Minérale, blanche, linéaire et large d’un côté, elle contraste avec la finesse de la «maille en bois » dont les variations d’orientations des ailettes offre un effet cinétique enrichissant la mise en scène urbaine. Minérales et végétales, les façades lient le projet à son contexte à la fois urbain et paysager. Sobre et élégant, le bâtiment se nuance et intègre les différentes contraintes du macro au micro en s’ajustant à chaque échelle de son environnement.




Espaces extérieurs paysagers uniques


Intégration forte du paysage et mise en oeuvre d’un biotope favorisant la biodiversité

• Réglementations ERP, code du travail
• Rigueur des plans : forte mutabilité
• Rez-de-chaussée et circulation principale : programmes actifs du bâtiment
• Paysage et espaces extérieurs omniprésents : jardins, roof-top,nombreuses terrasses et balcons
• Porosité et générosité des communs pour favoriser échanges et rencontres
• Escalier d’honneur central : lumière et ouverture

Plan rez-de-chaussée

Plan courant

Détail nez de plancher avec modénature bois
1. Tôle acier 20/10ème + viscoélastique 2.5 mm à 5 kg/m3
2. Laine de roche 50 kgm3
3. Tôle acier 0.75 mm calfeutrement nez de plancher fixation tous les 500 mm maxi + joint mousse ou pompe
4. Laine minérale collée à la façade à 50 kg/m3 minimum
5. Gousset métallique tous les 1350 mm
6. Complexe d’accroche des façades par éléments réglables par le dessous 3 dimensions
7. Bande BA13 + Isolant 30 mm
8. Reprise de charge pour consoles modénatures + interposition résiliant thermique
9. Espacement 13 mm permettant l’absorption de la dilatation et de la flèche 10 mm
10. Protection inox en tête de modénatures verticales
11. Axe d’accroche des modénatures verticales (rotule)
12. Shadowbox

Photos Pierre L'Excellent, Laurent Desmoulins
Antonini architecte & associés
36 rue de Lancry, 75010 Paris
+ 33 (0)1.82.28.04.70
agence@antonini.archi
Instagram
Linkedin
2019 © Antonini Archi