Projet
Les Agnettes
Année
2023
Maîtrise d’ouvrage
ICADE
Maîtrise d’oeuvre
Antonini architecte & associés
Mission
Concours
Programme
86 Logements et commerces
Surface
6850 m² SDP
Cout
12.4 M €

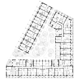
Véritable rotule urbaine, le projet tire ses forces de sa forme d’îlot pour fabriquer une urbanité forte. Son socle dévoile au public ses locaux collectifs et laisse deviner son cœur végétalisé.
Le projet porte la création de 89 logements, dont 86% traversants ou multi orientés, prolongés par un espace extérieur privatif. L’ensemble des parcours du quotidien sont perçus comme autant de lieux d’échange, permettant le lien social et une communauté de vie.
Ce projet est le fruit d’un récit collectif qui vient défendre des principes et des valeurs qui nous animent, sobriété, frugalité et humanité. Il porte l’ambition de devenir un véritable démonstrateur d’une ville résiliente et responsable.
Respectueux, refusant le systématisme et le maniérisme, le projet se veut ancré, agile, dédié à tous autant qu’à chacun.
Nous défendons une forme de pensée ou l’architecture et la technique sont au servie de l’humain, où les matériaux d’hier son réinventés pour construire demain durablement.





Projet
Les Agnettes
Année
2023
Maîtrise d’ouvrage
ICADE
Maîtrise d’oeuvre
Antonini architecte & associés
Mission
Concours
Programme
86 Logements et commerces
Surface
6850 m² SDP

Véritable rotule urbaine, le projet tire ses forces de sa forme d’îlot pour fabriquer une urbanité forte. Son socle dévoile au public ses locaux collectifs et laisse deviner son cœur végétalisé.
Le projet porte la création de 89 logements, dont 86% traversants ou multi orientés, prolongés par un espace extérieur privatif. L’ensemble des parcours du quotidien sont perçus comme autant de lieux d’échange, permettant le lien social et une communauté de vie.
Ce projet est le fruit d’un récit collectif qui vient défendre des principes et des valeurs qui nous animent, sobriété, frugalité et humanité. Il porte l’ambition de devenir un véritable démonstrateur d’une ville résiliente et responsable.
Respectueux, refusant le systématisme et le maniérisme, le projet se veut ancré, agile, dédié à tous autant qu’à chacun.
Nous défendons une forme de pensée ou l’architecture et la technique sont au servie de l’humain, où les matériaux d’hier son réinventés pour construire demain durablement.



Antonini architecte & associés
36 rue de Lancry, 75010 Paris
+ 33 (0)1.82.28.04.70
agence@antonini.archi
Instagram
Linkedin
2019 © Antonini Archi