Projet
Doudeauville
Année
2021
Maîtrise d’ouvrage
RIVP
Maîtrise d’oeuvre
Antonini architecte & associés
Mission
Concours
Programme
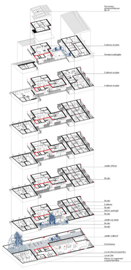
Construction de 34 logements +
1 commerce
Surface
1272,8 m² SDP


Ateliers mécaniques, école de musique et bientôt logements collectifs, le 83 rue Doudeauville est une adresse qui illustre qu’un bâtiment peut parfaitement avoir plusieurs vies.
Dans une démarche de politesse et d’humilité vis-à-vis des bâtiments voisins, le projet dialogue avec son environnement bâti tout en affirmant sa propre identité :
l’ensemble en résultant renforce la cohérence du projet global.
Les concepts développés cherchent à tendre vers plus de frugalité, en puisant leurs références dans les fondamentaux. Dans un monde en quête perpétuelle d’innovation et de complexification, l’humanité aspire à davantage de simplicité, à un retour à l’essentiel.
Conçu comme un ensemble de parcours individuels et collectifs, le projet appelle au plaisir du partage et du vivre-ensemble. Le projet porte la volonté d’offrir une qualité de vie, qu’elle soit individuelle ou collective, centrée sur le développement et l’épanouissement des usagers. Dans la continuité d’un bâtiment ayant déjà muté par le passé, nous prenons en considération les possibles évolutions et transformations des modes de vie futurs à travers une évolutivité des logements.
Le façonnage artisanal des matériaux, et notamment le verre, est mis au service de la matière et de son éclat naturel. C’est en associant des outils simples : épaisseur, profondeur, ombre et lumière, que les lignes épurées des façades sont magnifiées.






Projet
Doudeauville
Année
2021
Maîtrise d’ouvrage
RIVP
Maîtrise d’oeuvre
Antonini architecte & associés
Mission
Concours
Programme
Construction de 34 logements +
1 commerce
Surface
1272,8 m² SDP


Ateliers mécaniques, école de musique et bientôt logements collectifs, le 83 rue Doudeauville est une adresse qui illustre qu’un bâtiment peut parfaitement avoir plusieurs vies.
Dans une démarche de politesse et d’humilité vis-à-vis des bâtiments voisins, le projet dialogue avec son environnement bâti tout en affirmant sa propre identité :
l’ensemble en résultant renforce la cohérence du projet global.
Les concepts développés cherchent à tendre vers plus de frugalité, en puisant leurs références dans les fondamentaux. Dans un monde en quête perpétuelle d’innovation et de complexification, l’humanité aspire à davantage de simplicité, à un retour à l’essentiel.
Conçu comme un ensemble de parcours individuels et collectifs, le projet appelle au plaisir du partage et du vivre-ensemble. Le projet porte la volonté d’offrir une qualité de vie, qu’elle soit individuelle ou collective, centrée sur le développement et l’épanouissement des usagers. Dans la continuité d’un bâtiment ayant déjà muté par le passé, nous prenons en considération les possibles évolutions et transformations des modes de vie futurs à travers une évolutivité des logements.
Le façonnage artisanal des matériaux, et notamment le verre, est mis au service de la matière et de son éclat naturel. C’est en associant des outils simples : épaisseur, profondeur, ombre et lumière, que les lignes épurées des façades sont magnifiées.




Antonini architecte & associés
36 rue de Lancry, 75010 Paris
+ 33 (0)1.82.28.04.70
agence@antonini.archi
Instagram
Linkedin
2019 © Antonini Archi