Projet
Extension du CTLES
Année
Livré 2016
Maîtrise d’ouvrage
EPAURIF
Maitrise d'oeuvre
Antonini architecte & associés
Mission
Complète + mobilier + ICPE
Programme neuf
Archivage de fonds bibliothécaires
Surface
9663 m² SDP
Coût
16 M € HT
Équipements |

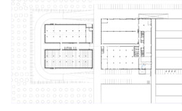
En extension d’un bâtiment conçu par Dominique Perrault, ce projet est destiné à conserver les documents provenant des fonds de bibliothèques des établissements supérieurs et de recherche de la région Île de France ainsi que de la Bibliothèque Nationale de France.
Le CTLES existant imprime une identité forte au lieu. Préservant la cohérence et l’intégrité de l’existant, notre extension s’implante en prolongement naturel, mais détachée pour ne pas dénaturer le bâtiment originel.
Pour garantir une bonne conservation des ouvrages, la fluidité du mouvement des documents et offrir un confort pour les usagers, le projet s’appuie sur trois grands principes fonctionnels : deux bâtiments silos-protecteurs des fonds, desservis par une galerie centrale éclairée naturellement, ceinturés par une peau enveloppante ramenant l’ensemble des exigences techniques en périphérie.
Tant du point de vue de l’implantation que de l’expression architecturale, l’extension fonctionne en continuité architecturale avec le bâtiment de Dominique Perrault. Reprenant le métal comme unique matériau, l’extension se pare d’inox nervuré, dont la brillance contraste avec la matité de l’aluminium existant.













Photos: Julien Lanoo, Pierre L'Excellent

Projet
Extension du CTLES
Année
Livré 2016
Maîtrise d’ouvrage
EPAURIF
Maitrise d'oeuvre
Antonini architecte & associés
Mission
Complète + mobilier + ICPE
Programme neuf
Archivage de fonds bibliothécaires
Surface
9663 m² SDP
Coût
16 M € HT
Équipements |

En extension d’un bâtiment conçu par Dominique Perrault, ce projet est destiné à conserver les documents provenant des fonds de bibliothèques des établissements supérieurs et de recherche de la région Île de France ainsi que de la Bibliothèque Nationale de France.
Le CTLES existant imprime une identité forte au lieu. Préservant la cohérence et l’intégrité de l’existant, notre extension s’implante en prolongement naturel, mais détachée pour ne pas dénaturer le bâtiment originel.
Pour garantir une bonne conservation des ouvrages, la fluidité du mouvement des documents et offrir un confort pour les usagers, le projet s’appuie sur trois grands principes fonctionnels : deux bâtiments silos-protecteurs des fonds, desservis par une galerie centrale éclairée naturellement, ceinturés par une peau enveloppante ramenant l’ensemble des exigences techniques en périphérie.
Tant du point de vue de l’implantation que de l’expression architecturale, l’extension fonctionne en continuité architecturale avec le bâtiment de Dominique Perrault. Reprenant le métal comme unique matériau, l’extension se pare d’inox nervuré, dont la brillance contraste avec la matité de l’aluminium existant.












Photos: Julien Lanoo, Pierre L'Excellent
Antonini architecte & associés
36 rue de Lancry, 75010 Paris
+ 33 (0)1.82.28.04.70
agence@antonini.archi
Instagram
Linkedin
2019 © Antonini Archi